Житловий комплекс
ЛІСОВА ГАРМОНІЯ

Будуємо з 2020 року
Збудовано 8073 м2
Будуємо 8100 м2
Переваги комплексу:
Котеджне містечко
Розташування Вінницькі хутори
Поряд мальовничий ліс та озеро
Одноповерхові будинки
Двоповерховий будинок
Таунхауси

Будинок - 139 м2

$97 000
Одноповерховий будинок біля лісу та озера!
Будинок 139м² на ділянці 5 соток
Комунікації підключені: газ, світло, вода, септик
Можлива автономна електростанція
Здається в чистовому стані
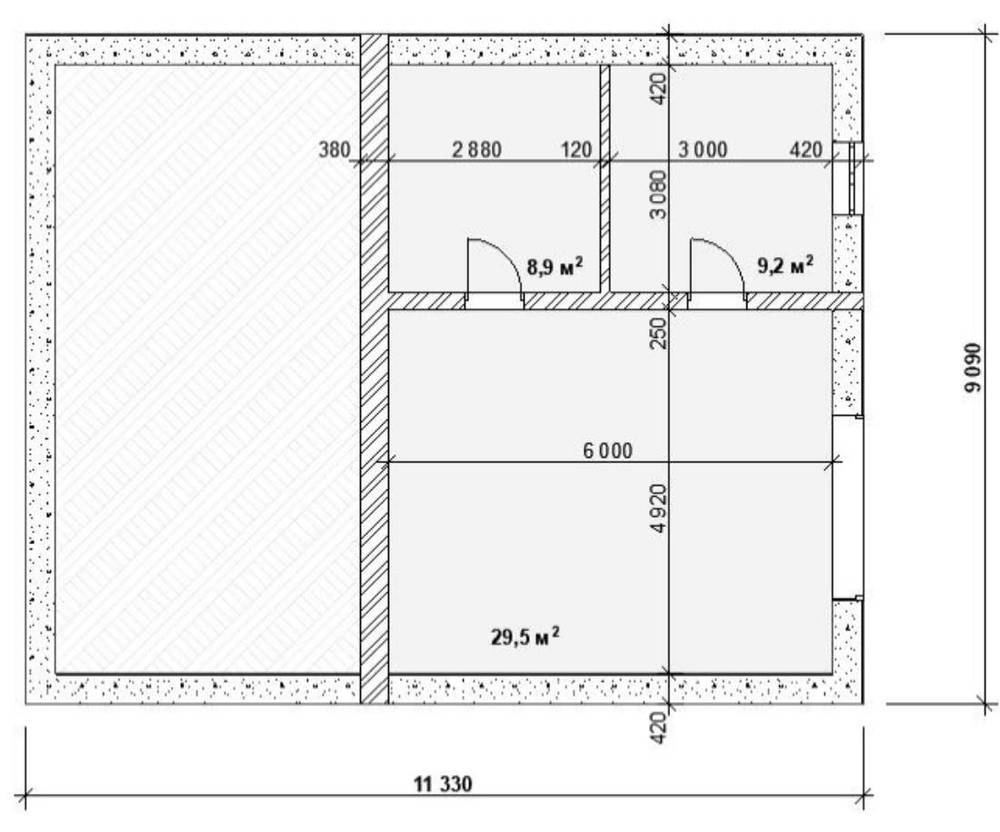
План цокольного поверху
  • Загальна площа 47.60 м2
План першого поверху
  • Коридор 12.00 м2
  • Кухня-вітальня 32.90 м2
  • Кімната 13.10 м2
  • Кімната 12.10 м2
  • Санвузол 4.90 м2
  • Кімната 12.00 м2
  • Санвузол 2.30 м2
  • Гардеробна 2.20 м2

Будинок - 118м²

Чорновий - $90 000
Чистовий - $110 000
Одноповерховий будинок
Загальна площа 118м²
Земельна ділянка 5 соток
Проведено всі комунікації в будинок
Газ, світло, вода, септик
Можлива здача як у чорновому, так і у чистовому стані
План будинку
  • Тамбур 3.76 м2
  • Тех. приміщення 4.00 м2
  • Гардероб 3.60 м2
  • Коридор 8.54 м2
  • Санвузол 5.00 м2
  • Кухня-вітальня 20.00 м2
  • Кімната 17.75 м2
  • Кімната 13.30 м2
  • Кімната 13.30 м2
  • Гараж 22.80 м2
  • Тераса 10.97 м2

Будинок - 101 м2

Чорновий - $86 000
Чистовий - $99 000
Загальна площа 101 м2
Земельна ділянка 4 сотки
Проведено всі комунікації в будинок
Газ, світло, вода — все буде під’єднано
Можлива здача як у чорновому, так і у чистовому стані
План будинку
  • Тамбур 5.56 м2
  • Топочна 5.08 м2
  • Санвузол 2.49 м2
  • Кімната 14.58 м2
  • Коридор 8.87 м2
  • Санвузол 6.08 м2
  • Кімната 14.58 м2
  • Кімната 14.25 м2
  • Кухня-вітальня 30.03 м2

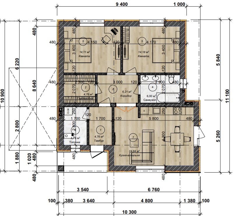
Будинок - 80 м2

Чорновий - $70 000
Чистовий - $85 000
Загальна площа 80 м2
Земельна ділянка 4 сотки
Проведено всі комунікації в будинок
Газ, світло, вода, септик
Можлива здача як у чорновому, так і у чистовому стані
План будинку
  • Тамбур 4.76 м2
  • Гардеропна 4.76 м2
  • Коридор 6.21 м2
  • Топочна 4.76 м2
  • Санвузол 6.00 м2
  • Кімната 14.11 м2
  • Кімната 14.18 м2
  • Кухня-вітальня 24.84 м2

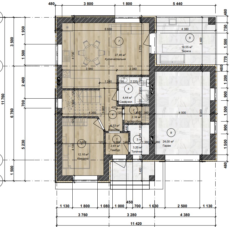
Будинок - 161 м2

Чорновий - $100 000
Чистовий - $125 000
Двоповерховий будинок біля лісу та озера!
Будинок 161 м2 на ділянці 4 соток
Комунікації підключені: газ, світло, вода, септик
Можлива автономна електростанція
Можлива здача як у чорновому, так і у чистовому стані
План першого поверху
  • Тамбур 2.61 м2
  • Гардеробна 2.34 м2
  • Топочна 3.20 м2
  • Санвузол 4.44 м2
  • Кімната 12.16 м2
  • Коридор 9.53 м2
  • Кухня-вітальня 27.46 м2
  • Гараж 24.00 м2
  • Тераса 14.55 м2
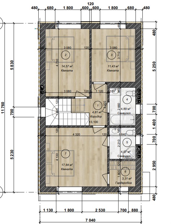
План другого поверху
  • Коридор 4.81 м2
  • Кімната 14.57 м2
  • Кімната 11.43 м2
  • Санвузол 4.89 м2
  • Санвузол 4.07 м2
  • Гардеробна 3.31 м2
  • Кімната 17.84 м2

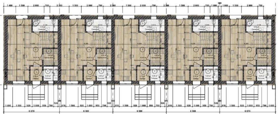
Таунхаус

Чорновий - $58 000
Чистовий - $68 000
Загальна площа 87 м2
Міцні цегляні стіни
Ділянка від 1,5 до 2,3 соток
Додаткова парковка — безкоштовно
Проведено всі комунікації
Можлива здача в чорновому або чистовому стані
План першого поверху
  • Тамбур 2.70 м2
  • Гардеробна 3.65 м2
  • Топочна 3.24 м2
  • Санвузол 4.69 м2
  • Кухня-вітальня 30.87 м2
План другого поверху
  • Коридор 2.31 м2
  • Кімната 11.86 м2
  • Гардеробна 3.24 м2
  • Санвузол 4.14 м2
  • Кімната 12.69 м2
  • Кімната 7.21 м2